Aangeboden diensten
1. Bouwtekeningen digitaliseren
Heeft U nog oude bouwtekeningen op papier en wilt U deze laten digitaliseren
Ook als de bestaande situatie niet overeenkomt met de huidige aanwezige tekeningen passen wij dit voor U aan. Zelfs als er geen tekeningen tot uw beschikking zijn kunnen wij persoonlijk langs komen voor het opmeten van de woning of het pand en vertalen naar een gedegen bouwkundige tekening.
Wat mag U van ons verwachten:
Het eerste verkennende gesprek vindt plaats bij U, of ons, of via mail. Aan de hand van uw wensen formuleren wij dan een advies.
Nadat U heeft besloten om met ons de samenwerking aan te gaan ontvangt U een toestemmingsformulier via E-mail, met dit formulier geeft u een akkoord op onze vrijblijvende offerte en geeft u ons toestemming om met uw verstrekte gegevens aan het werk te gaan. Zonder volledig ingevulde formulier kunnen wij U niet helpen dit i.v.m. de nieuwe privacywetgeving, een uitgebreide uitleg kunt U vinden onder de privacyverklaring.
Na ontvangst van de toestemmingsformulieren doen wij onze uiterste best om het geen wat U voor ogen heeft te vertalen naar de juiste tekeningen en documenten. Wij maken een dossier naar de wensen die U ons opgeeft en toetsen deze wensen aan de bouwvoorschriften en waar nodig worden deze in overleg aangepast.
Door U aan te leveren:
- Compleet ingevuld toestemmingsformulier.
- Kadastrale gegevens (adresgegevens te bouwen pand)
- Tekeningen bestaande woning
- Foto’s betreffende woning en erfscheidingen
- Heeft u geen bestaande tekeningen van uw woning dan kunnen wij altijd langskomen om het geheel in kaart brengen.
Bent U nieuwsgierig geworden naar wat wij voor U kunnen betekenen?
Neem dan contact met ons op.
2. Bestaande woning met verbouwing
Wilt U verbouwen aan- of in uw woning of pand? Dan kan het zijn dat U bouwkundige tekeningen nodig heeft voor de omgevingsvergunning, ook is er vaak een constructieberekening benodigd. Van eigen ontwerp of plan maken wij voor u de juiste tekeningen en een dossier voor de aangifte in het omgevingsloket.
In het geval van een verbouwing heeft U niet steeds noodzakelijk een architect nodig.
Wat mag U van ons verwachten:
Het eerste verkennende gesprek vindt plaats bij U, of ons, of via mail. Aan de hand van uw wensen formuleren wij dan een advies.
Nadat U heeft besloten om met ons de samenwerking aan te gaan ontvangt U een toestemmingsformulier via E-mail, met dit formulier geeft u een akkoord op onze vrijblijvende offerte en geeft u ons toestemming om met uw verstrekte gegevens aan het werk te gaan. Zonder volledig ingevulde formulier kunnen wij U niet helpen dit i.v.m. de nieuwe privacywetgeving, een uitgebreide uitleg kunt U vinden onder de privacyverklaring.
Na ontvangst van de toestemmingsformulieren doen wij onze uiterste best om hetgeen wat U voor ogen heeft te vertalen naar de juiste tekeningen en documenten. Wij maken een dossier naar de wensen die U ons opgeeft en toetsen deze wensen aan de bouwvoorschriften en waar nodig worden deze in overleg aangepast.
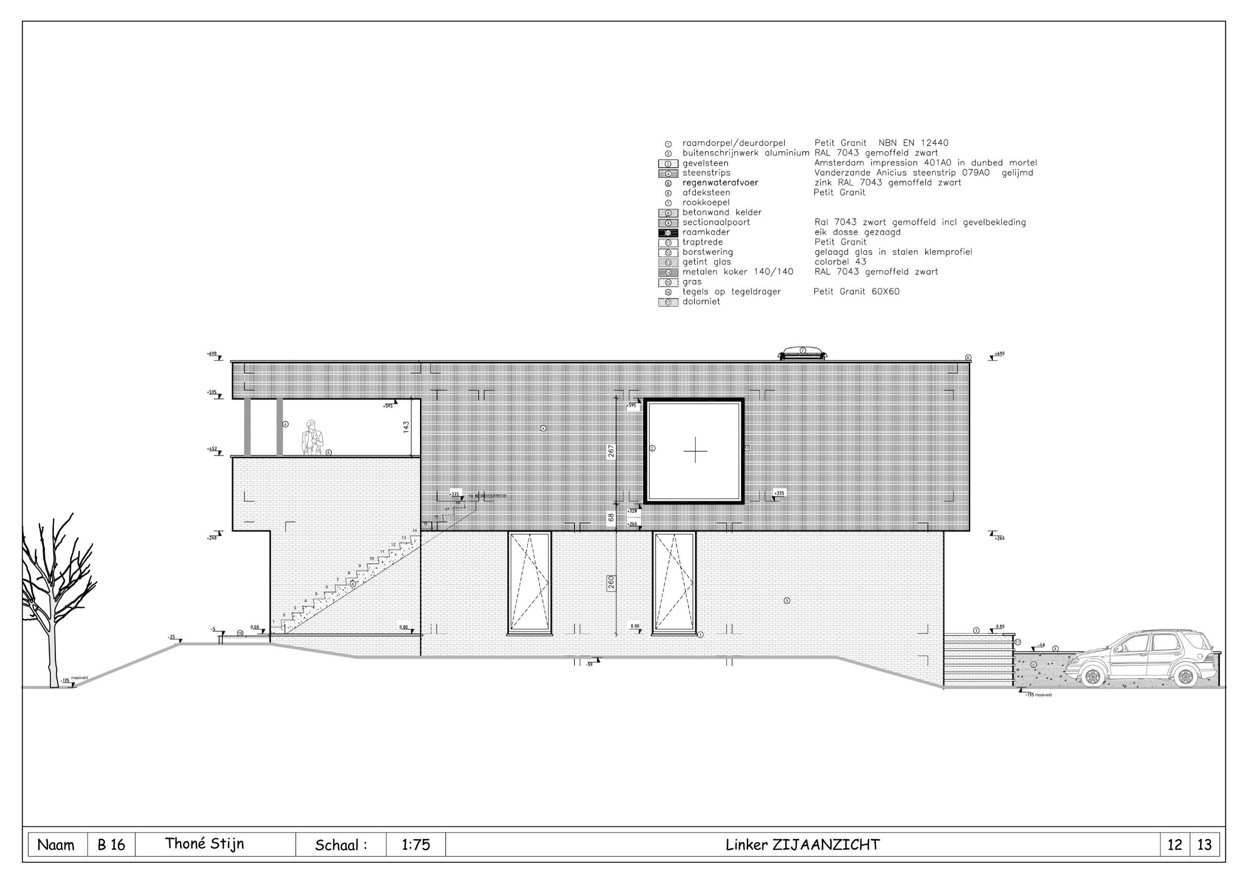
Bouwkundige tekeningen bestaand en nieuw. (Fase sloop kan afzonderlijk aangeleverd worden)
- Omgevings- en situeringsplan
- Inplantingsplan
- Kelderplan/funderingsplan
- Rioleringsplan
- Gelijkvloers plan
- Verdieping plan (indien van toepassing)
- Zolderplan (indien van toepassing)
- Dakenplan
- Doorsnede A-A
- Doorsnede B-B
- Voorgevel
- Gevel rechts
- Achtergevel
- Gevel rechts
Zodra de tekeningen klaar zijn, en omdat alle constructies steeds variëren, kunnen wij, indien gewenst, een offerte vragen om een constructieberekening te laten plaatst vinden. De constructie berekeningen gebeuren steeds door gerenommeerde bedrijven.
Mocht de gemeente om wat voor reden dan ook een wijziging willen in het bouwplan zullen wij deze éénmalig vrijblijvend aanpassen.
Door U aan te leveren:
- Compleet ingevuld toestemmingsformulier.
- Eventuele schetsen/plannen van uw verbouwing
- Kadastrale gegevens (adresgegevens te bouwen pand)
- Tekeningen bestaande woning (indien mogelijk in *.DWG bestandsformaat)
- Foto’s betreffende woning en erfscheidingen
- Heeft u geen bestaande tekeningen van uw woning dan kunnen wij altijd langskomen om het geheel in kaart brengen.
Bent U nieuwsgierig geworden naar wat wij voor U kunnen betekenen?
Neem dan contact met ons op.
3. Bouwtekeningen voor technieken, digitaliseren elektra, Hvac, verluchting, enz.
Heeft u elektrische, sanitaire of verluchtingplannen nodig voor de verkoop van uw pand / keuring of herkeuring van installaties?
Wij werken samen met een aantal gerenommeerde techniekers die de nodige opmetingen komen doen zodoende wij dit voor U op uw bestaande plannen kunnen in te tekenen. Wij maken een dossier naar de wensen die U ons opgeeft.
Wat mag U van ons verwachten:
Het eerste verkennende gesprek vindt plaats bij U, of ons, of via mail. Aan de hand van uw wensen formuleren wij dan een advies.
Nadat U heeft besloten om met ons de samenwerking aan te gaan ontvangt U een toestemmingsformulier via E-mail, met dit formulier geeft u een akkoord op onze vrijblijvende offerte en geeft u ons toestemming om met uw verstrekte gegevens aan het werk te gaan. Zonder volledig ingevulde formulier kunnen wij U niet helpen dit i.v.m. de nieuwe privacywetgeving, een uitgebreide uitleg kunt U vinden onder de privacyverklaring.
Na ontvangst van de toestemmingsformulieren doen wij onze uiterste best om hetgeen wat U voor ogen heeft te vertalen naar de juiste tekeningen en documenten. Wij maken een dossier naar de wensen die U ons opgeeft.
Door U aan te leveren:
- Compleet ingevuld toestemmingsformulier
- Kadastrale gegevens (adresgegevens te bouwen pand)
- Tekeningen bestaande panden
- Foto’s betreffende pand en erfscheidingen
- Heeft u geen bestaande tekeningen van uw pand, dan kunnen wij altijd langskomen om het geheel in kaart brengen.
Bent U nieuwsgierig geworden naar wat wij voor U kunnen betekenen?
Neem dan contact met ons op.
4. Aanpassen plannen bestaande As-Built dossier
Is Uw as-built dossier niet meer volledig up to date na een aantal verbouwingen en aanpassingen? Dan kunnen wij dat voor U aanpassen en digitaliseren?
We beginnen met het verzamelen van de nodige plannen, tekeningen, schetsen, foto's van het bestaande installaties en panden. Indien nodig schakelen wij gerenommeerde techniekers in om de nodige opmetingen te doen die wij dan vertalen naar de juiste tekeningen.
Het as-built plan beschrijft de nieuwe situatie nadat de werken werden voltooid. Het verschilt van een ontwerpplan doordat niet de bedoelde situatie wordt beschreven, maar wel de werkelijk gerealiseerde toestand.
- Het as-built plan maakt deel uit van het postinterventiedossier (verplicht voor alle bouwwerken (nieuwbouw en verbouwingen) die gestart zijn na 7-02-2006) en de EPB-aangifte. In die aangifte kan een verslaggever aanduiden welke resultaten al dan niet stroken met de EPB-eisen.
- Als bouwheer weet je bij een mogelijke herstelling perfect waar je leidingen lopen.
- Bij verkoop van een pand heeft de volgende eigenaar onmiddellijk de correcte plannen.
Wat mag U van ons verwachten:
Het eerste verkennende gesprek vindt plaats bij U, of ons, of via mail. Aan de hand van uw wensen formuleren wij dan een advies.
Nadat U heeft besloten om met ons de samenwerking aan te gaan ontvangt U een toestemmingsformulier via E-mail, met dit formulier geeft u een akkoord op onze vrijblijvende offerte en geeft u ons toestemming om met uw verstrekte gegevens aan het werk te gaan. Zonder volledig ingevulde formulier kunnen wij U niet helpen dit i.v.m. de nieuwe privacywetgeving, een uitgebreide uitleg kunt U vinden onder de privacyverklaring.
Na ontvangst van de toestemmingsformulieren doen wij onze uiterste best om hetgeen wat U voor ogen heeft te vertalen naar de juiste tekeningen en documenten. Wij maken een dossier naar de wensen die U ons opgeeft en toetsen deze wensen aan de bouwvoorschriften en waar nodig worden deze in overleg aangepast.
Bent U nieuwsgierig geworden naar wat wij voor U kunnen betekenen?
Neem dan contact met ons op.
5. Bijgebouw of zwembad op uw perceel
Heeft U plannen voor een bijgebouw of zwembad op uw perceel?
Dan kan het zijn dat u bouwkundige tekeningen nodig heeft voor de aanvraag omgevingsvergunning. Er is vaak een constructieberekening nodig, het plaatsen van een bijgebouw is in sommige gevallen vergunningsvrij (<40 m2). Het moet wel voldoen aan de bouwvoorschriften.
Indien gewenst kunnen wij een vergunningscheck voor u doen, wij raden U aan om een bouwkundige tekening en constructieberekening te laten maken.
Wat mag U van ons verwachten:
Het eerste verkennende gesprek vindt plaats bij U, of ons, of via mail. Aan de hand van uw wensen formuleren wij dan een advies.
Nadat U heeft besloten om met ons de samenwerking aan te gaan ontvangt U een toestemmingsformulier via E-mail, met dit formulier geeft u een akkoord op onze vrijblijvende offerte en geeft u ons toestemming om met uw verstrekte gegevens aan het werk te gaan. Zonder volledig ingevulde formulier kunnen wij U niet helpen dit i.v.m. de nieuwe privacywetgeving, een uitgebreide uitleg kunt U vinden onder de privacyverklaring.
Na ontvangst van de toestemmingsformulieren doen wij onze uiterste best om hetgeen wat U voor ogen heeft te vertalen naar de juiste tekeningen en documenten. Wij maken een dossier naar de wensen die U ons opgeeft en toetsen deze wensen aan de bouwvoorschriften en waar nodig worden deze in overleg aangepast.
Door U aan te leveren:
- Compleet ingevuld toestemmingsformulier
- Kadastrale gegevens (adresgegevens te bouwen pand)
- Tekeningen bestaande woning
- Foto’s betreffende woning en erfscheidingen
- Heeft u geen bestaande tekeningen van uw woning dan kunnen wij altijd langskomen om het geheel in kaart brengen.
Bent U nieuwsgierig geworden naar wat wij voor U kunnen betekenen?
Neem dan contact met ons op.
6. Aanpassingen in tuin of omgeving
Heeft U plannen voor de her aanleg van uw voortuin, tuinmuur, tuin of buitentrap?
Dan kan het zijn dat u bouwkundige tekeningen nodig heeft voor de aanvraag omgevingsvergunning.
Indien gewenst kunnen wij een vergunningscheck voor u doen, wij raden u aan om een bouwkundige tekening en eventueel benodigde constructieberekening te laten maken.
Wat mag U van ons verwachten:
Het eerste verkennende gesprek vindt plaats bij U, of ons, of via mail. Aan de hand van uw wensen formuleren wij dan een advies.
Nadat U heeft besloten om met ons de samenwerking aan te gaan ontvangt U een toestemmingsformulier via E-mail, met dit formulier geeft u een akkoord op onze vrijblijvende offerte en geeft u ons toestemming om met uw verstrekte gegevens aan het werk te gaan. Zonder volledig ingevulde formulier kunnen wij U niet helpen dit i.v.m. de nieuwe privacywetgeving, een uitgebreide uitleg kunt U vinden onder de privacyverklaring.
Na ontvangst van de toestemmingsformulieren doen wij onze uiterste best om hetgeen wat U voor ogen heeft te vertalen naar de juiste tekeningen en documenten. Wij maken een dossier naar de wensen die U ons opgeeft.
Door U aan te leveren:
- Compleet ingevuld toestemmingsformulier
- Kadastrale gegevens (adresgegevens te bouwen pand)
- Tekeningen bestaande woning
- Foto’s betreffende woning en erfscheidingen
- Heeft u geen bestaande tekeningen van uw woning dan kunnen wij altijd langskomen om het geheel in kaart brengen
Bent U nieuwsgierig geworden naar wat wij voor U kunnen betekenen?
Neem dan contact met ons op.
7. Bouwkundig advies
Bouw Informatie Management, kortweg BIM, staat voor digitaal samenwerken in de gebouwde omgeving.
BIM gaat over het integraal beheer en (her)gebruik van digitale bouwwerkinformatie tijdens de hele levenscyclus van een bouwwerk.
Gegevens worden zoveel mogelijk éénmalig ingevoerd en meervoudig gebruikt. Via open standaarden wisselen opdrachtgever, architect, adviseurs, aannemer en installateur onderling informatie uit. Iedere betrokken partij gebruikt daarbij zijn eigen software.
Omgevingsloket, omgevingsvergunning, architect wel of niet, stabiliteitsberekeningen, grondverzet, een vergunning of melding nodig, vereenvoudigde versie van het Omgevingsloket, enz…
Wist u dat :
- Het aanleggen van verharde constructies, opritten, overwelvingen en terrassen vergunning plichtig is?
- Zwembaden, zwemvijvers en siervijvers worden beschouwd worden als verhardingen?
- Het plaatsen van losstaande bijgebouwen in de tuin zoals een tuinhuis, serre, schuurtje, pool house of garage vergunning plichtig is?
- Het slopen of afbreken van constructies vergunning plichtig is?
Wat mag U van ons verwachten:
Het eerste verkennende gesprek vindt plaats bij U, of ons, of via mail. Aan de hand van uw wensen formuleren wij dan een advies.
Nadat U heeft besloten om met ons de samenwerking aan te gaan ontvangt U een toestemmingsformulier via E-mail, met dit formulier geeft u een akkoord op onze vrijblijvende offerte en geeft u ons toestemming om met uw verstrekte gegevens aan het werk te gaan. Zonder volledig ingevulde formulier kunnen wij U niet helpen dit i.v.m. de nieuwe privacywetgeving, een uitgebreide uitleg kunt U vinden onder de privacyverklaring.
Na ontvangst van de toestemmingsformulieren doen wij onze uiterste best om hetgeen wat U voor ogen heeft te vertalen naar de juiste tekeningen en documenten. Wij kunnen U begeleiden, adviseren en maken een dossier naar de wensen die U ons opgeeft en toetsen deze wensen aan de bouwvoorschriften en waar nodig worden deze in overleg aangepast.
Bent U nieuwsgierig geworden naar wat wij voor U kunnen betekenen?
Neem dan contact met ons op.
8. Opleidingen Archicad/Revit
Autodesk Revit helpt u als architect, bouwkundig tekenaar of aannemer bij het vastleggen en analyseren van het gebouw van concept tot de details. De software is speciaal ontwikkeld voor het building information modeling (BIM).
Met BIM wordt het maken van een 3D model van een gebouw bedoeld. Dit model moet aangevuld zijn met extra bouwinformatie zoals de gegevens voor het bestek. U maakt een 3D model, duidelijke tekeningen en details en u berekent de hoeveelheden.
Met Archicad, de meest intuïtieve en complete BIM-software voor architecten, ontwerp je projecten van iedere grootte. Handige documentatietools, realistische renders en hoogstaande modelanalyses helpen je in het proces.
Kies voor Archicad en profiteer van maximale ontwerpvrijheid en zeer efficiënte ontwerpprocessen.
Ontwerp, visualiseer, documenteer en lever projecten van elke omvang met Archicad 's krachtige set ingebouwde tools en gebruiksvriendelijke interface die het de meest efficiënte en intuïtieve BIM-software op de markt maken.
Met Archicad kunt u zich concentreren op waar u het beste in bent: geweldige gebouwen ontwerpen.
Bent U nieuwsgierig geworden naar wat wij voor U kunnen betekenen?
Neem dan contact met ons op.
9. Levensechte ontwerpen
Tekeningen van: meubelen, trappen, houtskelet, tuinhuis, constructies, betonbalken volgens constructieberekeningen, carports, keukens, badkamers, enz.
Ga je verbouwen of verhuizen en wil je een goed beeld krijgen van al de mogelijkheden, dan kan een levensecht ontwerp een goed beeld geven over wat je kan verwachten.
Wij doen onze uiterste best om hetgeen wat U voor ogen heeft betaalbaar te vertalen naar de juiste tekeningen.
Bent U nieuwsgierig geworden naar wat wij voor U kunnen betekenen?
Neem dan contact met ons op.
10. Nieuwbouw woning Architecten
Opgelet hiervoor is er steeds een architect nodig!
Droomt U al zo lang naar uw eigen nieuwbouwwoning? Tekenbureau Thoné kan U helpen om uw droom werkelijkheid te maken! Van eigen ontwerp of plan maken wij voor U de juiste tekeningen en een dossier voor de architect voor de aangifte in het omgevingsloket.
In geval van een nieuwbouwwoning heeft U steeds een architect nodig.
Wat mag U van ons verwachten:
Het eerste verkennende gesprek vindt plaats bij U, of ons, of via mail. Aan de hand van uw wensen formuleren wij dan een advies.
Nadat U heeft besloten om met ons de samenwerking aan te gaan ontvangt U een toestemmingsformulier via E-mail, met dit formulier geeft u een akkoord op onze vrijblijvende offerte en geeft u ons toestemming om met uw verstrekte gegevens aan het werk te gaan. Zonder volledig ingevulde formulier kunnen wij U niet helpen dit i.v.m. de nieuwe privacywetgeving, een uitgebreide uitleg kunt U vinden onder de privacyverklaring.
Na ontvangst van de toestemmingsformulieren doen wij onze uiterste best om hetgeen wat U voor ogen heeft te vertalen naar de juiste tekeningen en documenten. Wij maken een dossier naar de wensen die U ons opgeeft en toetsen deze wensen aan de bouwvoorschriften en waar nodig worden deze in overleg aangepast.
Dossier nieuwe toestand:
- Omgevings- en situeringsplan
- Inplantingsplan
- Kelderplan/funderingsplan
- Rioleringsplan
- Gelijkvloers plan
- Verdieping plan (indien van toepassing)
- Zolderplan (indien van toepassing)
- Dakenplan
- Doorsnede A-A
- Doorsnede B-B
- Voorgevel
- Gevel rechts
- Achtergevel
- Gevel rechts
Zodra de tekeningen klaar zijn en omdat alle constructies steeds variëren kunnen wij, indien gewenst, een offerte vragen om een constructieberekening te laten plaatst vinden. De constructie berekeningen gebeuren steeds door gerenommeerde bedrijven.
Mocht de gemeente om wat voor reden dan ook een wijziging willen in het bouwplan zullen wij deze eenmalig vrijblijvend aanpassen.
Door U aan te leveren:
- Compleet ingevuld toestemmingsformulier
- Eventuele schetsen/plannen van uw droom
- Kadastrale gegevens (adresgegevens te bouwen pand)
Bent U nieuwsgierig geworden naar wat wij voor U kunnen betekenen?
Neem dan contact met ons op.



































